Three Box Stable Block with Tack Room, Separate Field Shelter
Detached Quad Garage
Four Reception Areas
Ground Floor Shower Room, First Floor Bathroom
Extensive Parking
Viewings Strictly Via Saddlers
Located at the very end of a country lane in the hamlet of Lenham Heath, this attractive five bedroom detached, extended farmhouse dating back to circa 1750 combines period charm with modern comfort.
Set within approximately 3.17 acres of picturesque grounds with countryside views towards the North Downs, this surprisingly spacious property offers a wonderful opportunity for countryside living with equestrian potential yet whilst being in easy reach of transport connections and local shops.
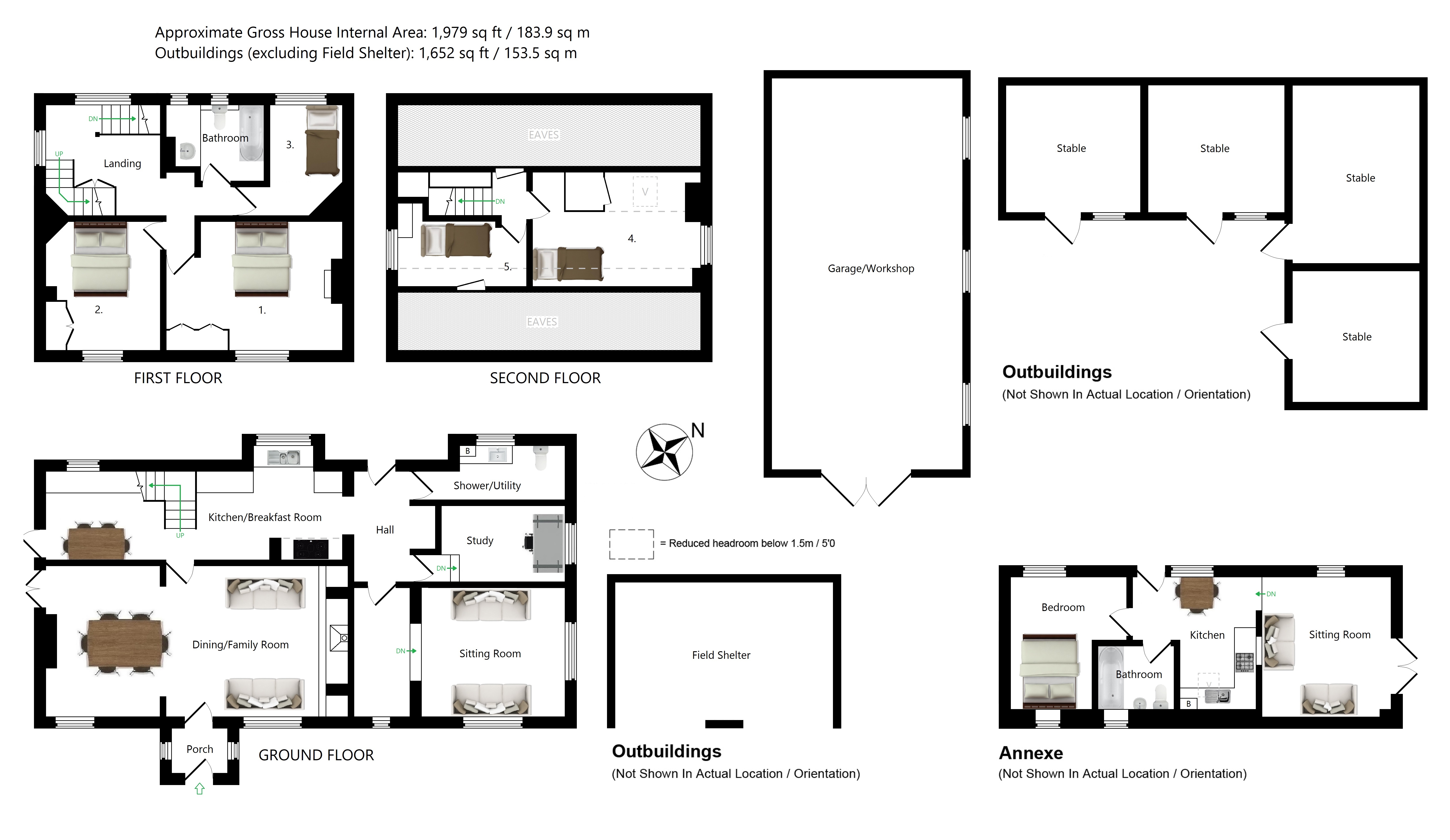
The main house boasts character features including exposed beams, original fireplaces, and generously sized rooms. The accommodation over three floors comprises a generous family/dining room, kitchen/breakfast room, additional sitting room, study and ground floor shower/utility room, five bedrooms and a family bathroom.
Complementing the main residence is a beautifully renovated ragstone detached annexe, ideal for multi-generational living, guest accommodation, or potential rental income. A self contained annexe with one bedroom and it's own private patio area and two parking spaces.
Outside, the land is thoughtfully divided to include two paddocks, an established garden, and ample space for outdoor pursuits. Equestrian enthusiasts will appreciate the four stables and a quad garage for those looking to store their pride and joy or storage. There is plentiful parking in the large driveway, please note there is a vehicular right of access (access, not parking) for a neighbour to their own drive.
Locality
The property is located in Lenham Heath, a small rural community located between the villages of Charing and Lenham with their interesting mix of shops, pubs, churches, primary and secondary schools and doctors' surgeries. Transport links are well supported with mainline railway stations in Charing and Lenham providing access to London Victoria and Ashford International Stations with its high speed 37 minute service to London St Pancras.
Junction 9 of the M20 motorway is some 6 miles distant and junction 8 just 9 miles, the village of Charing is also just 5 miles west of the market town of Ashford with its wide range of excellent shopping and leisure facilities and choice of primary and secondary schools.
Ground Floor
Entrance Porch Dining/Family Room: 25'3" x 12'2" (7.70m x 3.71m) Kitchen/Breakfast Room: 26'8" x 11'10" (8.13m x 3.61m) at largest Rear Hall Shower Room Study: 11'0" x 6'11" (3.35m x 2.11m) Sitting Room: 19'0" x 11'6" (5.79m x 3.51m)
First Floor
Landing Bedroom One: 16'2" x 11'8" (4.93m x 3.56m) Bedroom Two: 11'9" x 11'4" (3.58m x 3.45m) Bedroom Three: 10'0" x 6'7" (3.05m x 2.01m) Bathroom
Second Floor
Landing Bedroom Four: 15'6" x 10'0" (4.72m x 3.05m) into eaves Bedroom Five: 11'10" x 7'6" (3.61m x 2.29m)
Detached Annexe
Living Room: 12'8" x 11'7" (3.86m x 3.53m) Kitchen/Breakfast: 11'9" x 6'7" (3.58m x 2.01m) at largest Bathroom Bedroom: 12'0" x 10'7" (3.66m x 3.23m)
Outbuildings
Garage: 35'4" x 17'2" (10.77m x 5.23m) Stable Block 3 x 12' boxes, 1 x 16' box Field Shelter: 13'1" x 13'1" (3.99m x 3.99m)
Services
LPG central heating, cesspit drainage, mains electricity Current broadband speed: 24mbps (80 mbps available)
Tenure
Freehold with a vehicular access for a neighbouring property
Council Tax
Band G (House) - Maidstone Borough Council Band A (Annexe) - Maidstone Borough Council
Location
Description
Five Bedroom Detached Farmhouse Over Three Floors
Orginally Dating Back to 1750
3.17 Acre Plot with Paddocks
Detached Self Contained Annexe
Three Box Stable Block with Tack Room, Separate Field Shelter
Detached Quad Garage
Four Reception Areas
Ground Floor Shower Room, First Floor Bathroom
Extensive Parking
Viewings Strictly Via Saddlers
Located at the very end of a country lane in the hamlet of Lenham Heath, this attractive five bedroom detached, extended farmhouse dating back to circa 1750 combines period charm with modern comfort.
Set within approximately 3.17 acres of picturesque grounds with countryside views towards the North Downs, this surprisingly spacious property offers a wonderful opportunity for countryside living with equestrian potential yet whilst being in easy reach of transport connections and local shops.
The main house boasts character features including exposed beams, original fireplaces, and generously sized rooms. The accommodation over three floors comprises a generous family/dining room, kitchen/breakfast room, additional sitting room, study and ground floor shower/utility room, five bedrooms and a family bathroom.
Complementing the main residence is a beautifully renovated ragstone detached annexe, ideal for multi-generational living, guest accommodation, or potential rental income. A self contained annexe with one bedroom and it's own private patio area and two parking spaces.
Outside, the land is thoughtfully divided to include two paddocks, an established garden, and ample space for outdoor pursuits. Equestrian enthusiasts will appreciate the four stables and a quad garage for those looking to store their pride and joy or storage. There is plentiful parking in the large driveway, please note there is a vehicular right of access (access, not parking) for a neighbour to their own drive.
Locality
The property is located in Lenham Heath, a small rural community located between the villages of Charing and Lenham with their interesting mix of shops, pubs, churches, primary and secondary schools and doctors' surgeries. Transport links are well supported with mainline railway stations in Charing and Lenham providing access to London Victoria and Ashford International Stations with its high speed 37 minute service to London St Pancras.
Junction 9 of the M20 motorway is some 6 miles distant and junction 8 just 9 miles, the village of Charing is also just 5 miles west of the market town of Ashford with its wide range of excellent shopping and leisure facilities and choice of primary and secondary schools.
Ground Floor
Entrance Porch Dining/Family Room: 25'3 x 12'2 (7.70m x 3.71m) Kitchen/Breakfast Room: 26'8 x 11'10 (8.13m x 3.61m) at largest Rear Hall Shower Room Study: 11'0 x 6'11 (3.35m x 2.11m) Sitting Room: 19'0 x 11'6 (5.79m x 3.51m)
First Floor
Landing Bedroom One: 16'2 x 11'8 (4.93m x 3.56m) Bedroom Two: 11'9 x 11'4 (3.58m x 3.45m) Bedroom Three: 10'0 x 6'7 (3.05m x 2.01m) Bathroom
Second Floor
Landing Bedroom Four: 15'6 x 10'0 (4.72m x 3.05m) into eaves Bedroom Five: 11'10 x 7'6 (3.61m x 2.29m)
Detached Annexe
Living Room: 12'8 x 11'7 (3.86m x 3.53m) Kitchen/Breakfast: 11'9 x 6'7 (3.58m x 2.01m) at largest Bathroom Bedroom: 12'0 x 10'7 (3.66m x 3.23m)
Outbuildings
Garage: 35'4 x 17'2 (10.77m x 5.23m) Stable Block 3 x 12' boxes, 1 x 16' box Field Shelter: 13'1 x 13'1 (3.99m x 3.99m)
Services
LPG central heating, cesspit drainage, mains electricity Current broadband speed: 24mbps (80 mbps available)
Tenure
Freehold with a vehicular access for a neighbouring property
Council Tax
Band G (House) - Maidstone Borough Council Band A (Annexe) - Maidstone Borough Council