Central Location with Mainline Station 0.7 Miles Away
Situated in a private cul-de-sac location on a small development of contemporary properties built by Akehurst Homes this modern attractive end terraced home offers spacious family accommodation within walking distance of Lenham village centre.
Constructed in 2018 and blending modern design with village life, this attractive property provides low maintenance living with such notable features as gas central heating, double glazing, a double garage and many amenities close at hand.
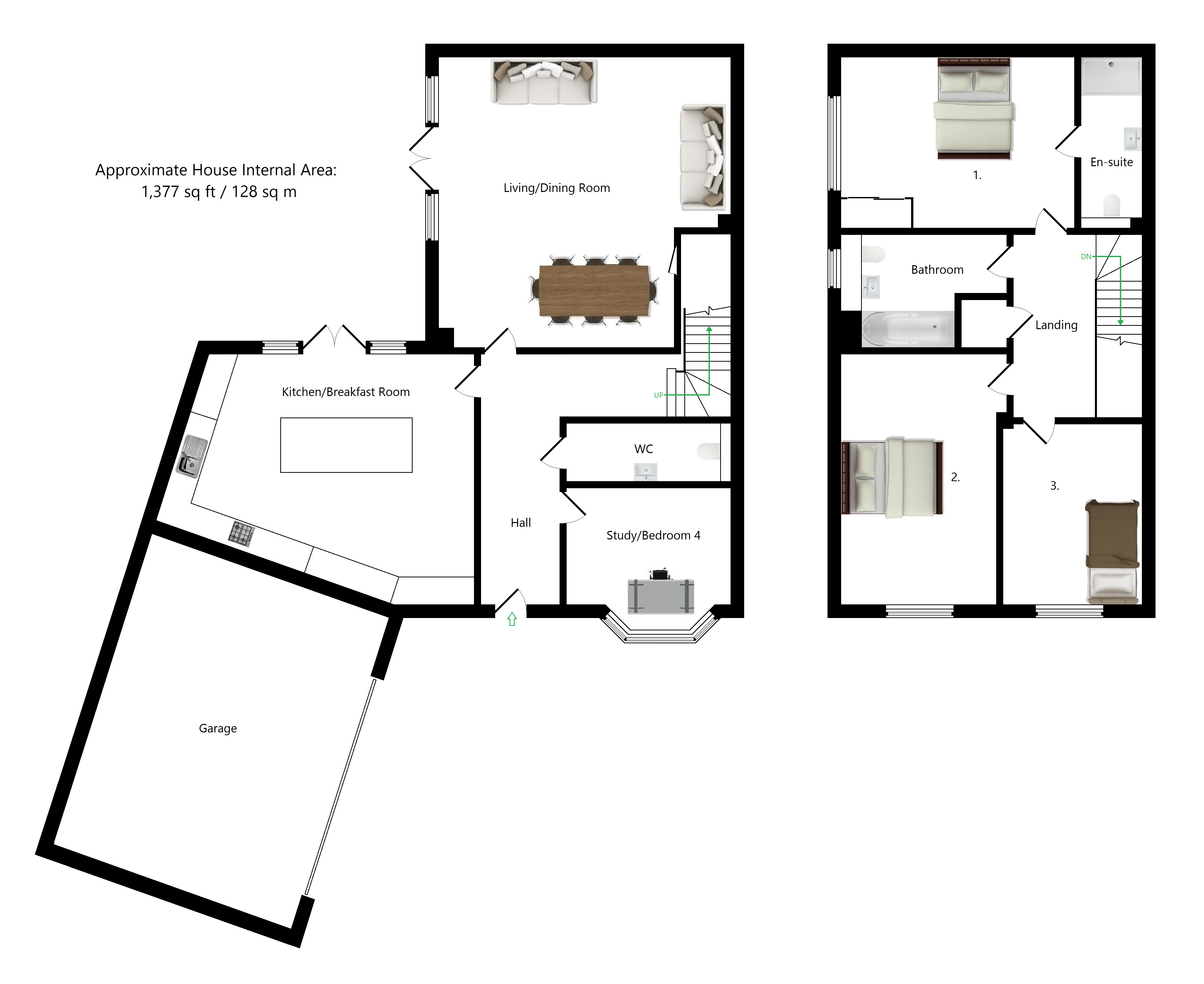
The accommodation comprises entrance hall, cloakroom and a generous light and airy kitchen/breakfast room. There is also a living/dining room with double doors opening to the rear garden and a study/bedroom 4. To the first floor there are three generous bedrooms, the principle bedroom having an en-suite shower room and a main family bathroom.
The property has a small front garden with brick paved road providing access to the adjoining double garage, unusual for a property of this size. To the rear is a split level garden of approximately 28' square with paved patio area perfect for outside entertaining and steps leading down to a lower garden with astroturf and a rear gate with pedestrian access. Locality The property is situated just a short walk from the village square, the bustling centre of Lenham, an historic market village situated some nine miles east of the county town of Maidstone. The village has an interesting mix of local shops, restaurants, pubs, church, doctor's surgery and a monthly Country Market held in The Square. The village benefits from two respected schools Lenham Primary & The Lenham School Secondary both within walking distance.
Public transport is well catered for with a main line railway station in the village providing access to London Victoria and Ashford International station with the High Speed 37 minute Javelin service to London St Pancras, while excellent road links to London and the Kent coast are accessible at junction 8 of the M20, five miles west.
Ground Floor
Entrance Hall: 15'7" (4.75m) long Cloakroom: 10'0" x 3'5" (3.30m x 1.04m) Kitchen/Breakfast Room: 17'4" x 15'1" (5.28m x 4.60m) at largest Living/Dining Room: 18'3" x 17'6" (5.56m x 5.33m) Study/Bedroom 4: 10'0" x 9'0" (3.05m x 2.74m) at largest
First Floor
Landing Principle Bedroom: 13'7" x 10'4" (4.14m x 3.15m) En-suite Shower Room: 10'3" x 3'6" (3.12m x 1.07m) Bedroom Two: 14'8" x 9'3" (4.47m x 2.82m) Bedroom Three: 11'0" x 7'9" (3.35m x 2.36m) Bathroom: 9'7" x 7'0" (2.92m x 2.13m) at largest Outside
Garage: 20'7" x 16'1" (6.27m x 4.90m) Rear Garden: 28'0" x 27'0" (8.53m x 8.23m) approx
Central Location with Mainline Station 0.7 Miles Away
Situated in a private cul-de-sac location on a small development of contemporary properties built by Akehurst Homes this modern attractive end terraced home offers spacious family accommodation within walking distance of Lenham village centre.
Constructed in 2018 and blending modern design with village life, this attractive property provides low maintenance living with such notable features as gas central heating, double glazing, a double garage and many amenities close at hand.
The accommodation comprises entrance hall, cloakroom and a generous light and airy kitchen/breakfast room. There is also a living/dining room with double doors opening to the rear garden and a study/bedroom 4. To the first floor there are three generous bedrooms, the principle bedroom having an en-suite shower room and a main family bathroom.
The property has a small front garden with brick paved road providing access to the adjoining double garage, unusual for a property of this size. To the rear is a split level garden of approximately 28' square with paved patio area perfect for outside entertaining and steps leading down to a lower garden with astroturf and a rear gate with pedestrian access. Locality The property is situated just a short walk from the village square, the bustling centre of Lenham, an historic market village situated some nine miles east of the county town of Maidstone. The village has an interesting mix of local shops, restaurants, pubs, church, doctor's surgery and a monthly Country Market held in The Square. The village benefits from two respected schools Lenham Primary & The Lenham School Secondary both within walking distance.
Public transport is well catered for with a main line railway station in the village providing access to London Victoria and Ashford International station with the High Speed 37 minute Javelin service to London St Pancras, while excellent road links to London and the Kent coast are accessible at junction 8 of the M20, five miles west.
Ground Floor
Entrance Hall: 15'7 (4.75m) long Cloakroom: 10'0 x 3'5 (3.30m x 1.04m) Kitchen/Breakfast Room: 17'4 x 15'1 (5.28m x 4.60m) at largest Living/Dining Room: 18'3 x 17'6 (5.56m x 5.33m) Study/Bedroom 4: 10'0 x 9'0 (3.05m x 2.74m) at largest
First Floor
Landing Principle Bedroom: 13'7 x 10'4 (4.14m x 3.15m) En-suite Shower Room: 10'3 x 3'6 (3.12m x 1.07m) Bedroom Two: 14'8 x 9'3 (4.47m x 2.82m) Bedroom Three: 11'0 x 7'9 (3.35m x 2.36m) Bathroom: 9'7 x 7'0 (2.92m x 2.13m) at largest Outside
Garage: 20'7 x 16'1 (6.27m x 4.90m) Rear Garden: 28'0 x 27'0 (8.53m x 8.23m) approx